Porzione di casa in Vendita
A circa 7 km dal centro di Giaveno, nella tranquilla Borgata Verna (880 m di altitudine), si trova questa accogliente casa libera su tre lati, ideale per chi cerca quiete, natura e fascino rustico.
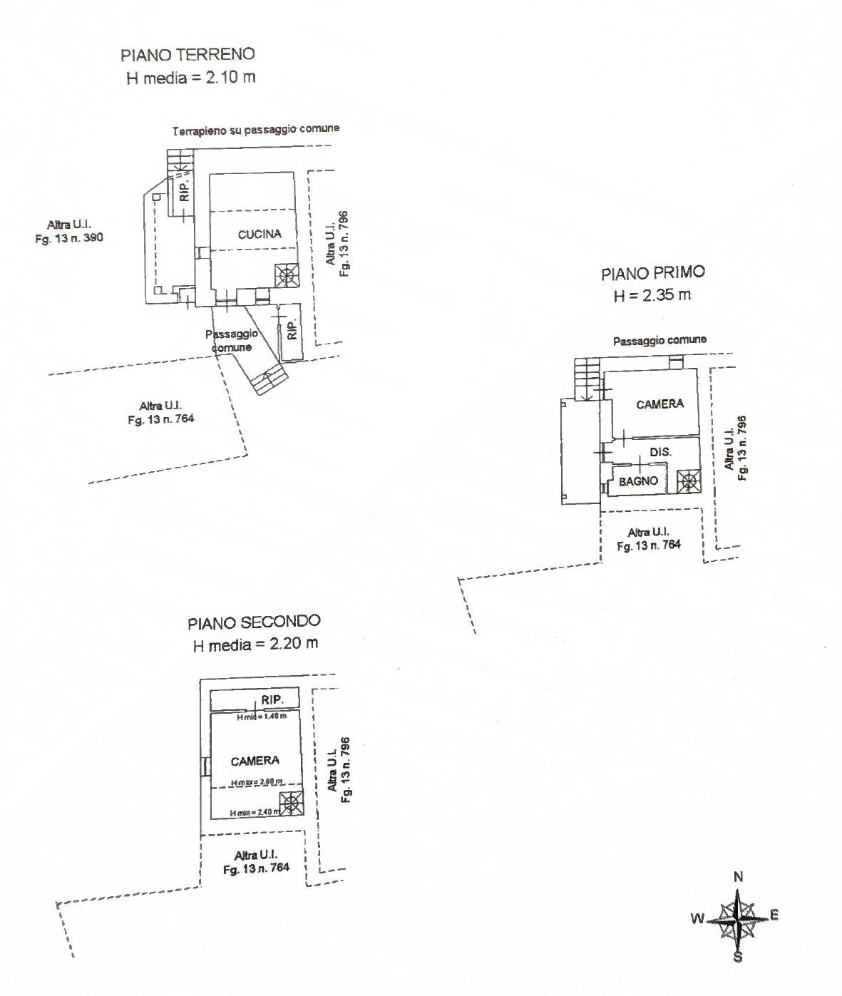
Al piano terra, una cucina caratteristica con splendidi voltini in mattoni e camino funzionante crea un’atmosfera calda e intima. Una scala a chiocciola collega i piani superiori.
Il primo piano ospita un disimpegno, un bagno, una camera e un ampio terrazzo con accesso anche dall’esterno, perfetto per godersi la vista e la tranquillità del borgo.
La mansarda, con travi in legno a vista, è uno spazio versatile e suggestivo, ideale come zona notte romantica o studio.
Completano la proprietà un locale deposito adiacente e un riscaldamento a camino che diffonde calore in tutta la casa.
La casa si trova in una tipica borgata di montagna, raggiungibile a piedi in pochi minuti: un piccolo angolo di serenità dove il tempo sembra rallentare, ma i servizi di Giaveno restano a portata di mano.
Classe energetica
EP glnr: 209.39 kwh/m²
































