Appartamento in Vendita
"HORIZONTE QUATTRO" sinonimo di Innovazione, Eleganza e Risparmio Energetico .
Vieni a scoprire la TUA nuova CASA di DESIGN che esalta la bellezza e la qualità della vita quotidiana.
Il complesso offre spazi comuni esclusivi, tra cui una moderna palestra attrezzata e un locale condominiale dedicato al Coworking, pensati per chi desidera il confort senza allontanarsi da casa.
Nel cuore della città, in prossimità della Piazza del Comune, è in fase di realizzazione un nuovo e ESCLUSIVO PROGETTO RESIDENZIALE.
Valorizzato da impianti e finiture all'avanguardia che garantiscono un elevato livello di comfort e sicurezza, dove la cura degli spazi interni e le dotazioni tecnologiche rendono il complesso UNICO .
La posizione è ideale per chi desidera vivere in un quartiere residenziale con tutti i servizi e le comodità a portata di mano.
Ogni singolo Appartamento è stato concepito con tutte le caratteristiche di un attico e dotato di ampi terrazzi per i momenti conviviali in famiglia.
Disponibilità di Autorimesse e posti auto.
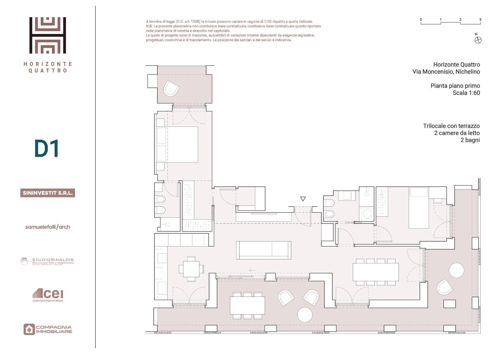
UNITA' D 1 ingresso su disimpegno sala da pranzo ,zona relax , cucina abitabile con accesso sul terrazzo angolare ; zona notte con 2 camere e doppi servizi oltre ad utile ripostiglio. Il tutto impreziosito da una loggia coperta godibile.
Ogni Unità è dotata di Riscaldamento autonomo a pompa di calore , pannelli fotovoltaici e impianto VMC.
Classe energetica










